top of page
ANKARA
lapıs
OFFICE
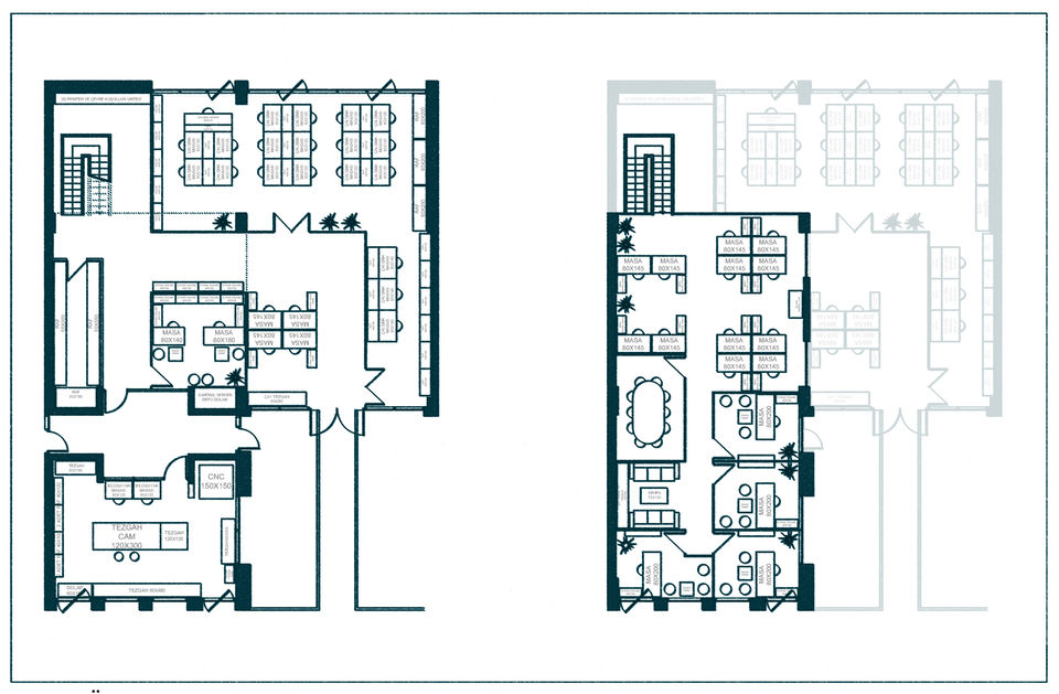
Lapis Office interior design project proposes an open office space reflecting the spirit of their field of operations, aerospace technologies. Transparent rooms, workstations, and cubicles are designed in a fresh, well-lit ambiance best serving the company employees.
bottom of page




